
Sale agreed

























£180,000
The Village, Bebington, Wirral, CH63 7PW
- Semi-Detached
2
1
1
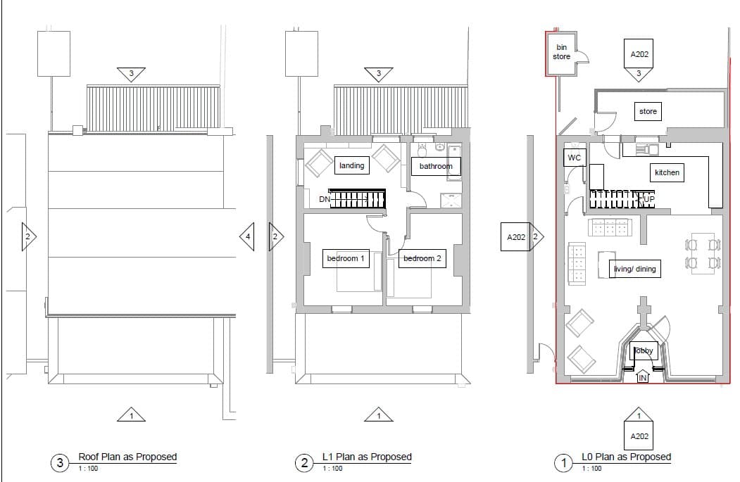
CASH BUYERS ONLY! With full planning permission (APP/25/01680) in place, this two-bedroom semi-detached property is ready for someone to take it through second fix and complete it, unlocking and showcasing its full potential.
Features
Two-bedroom semi-detached property
Freehold
Cash buyers only
Ideal project takeover opportunity
Significant potential
Ready for second fix and final completion
Prime location
Planning approved






