10








Offers Over
£250,000
Lees Avenue, Rock Ferry, Wirral, CH42 2BJ
- Land
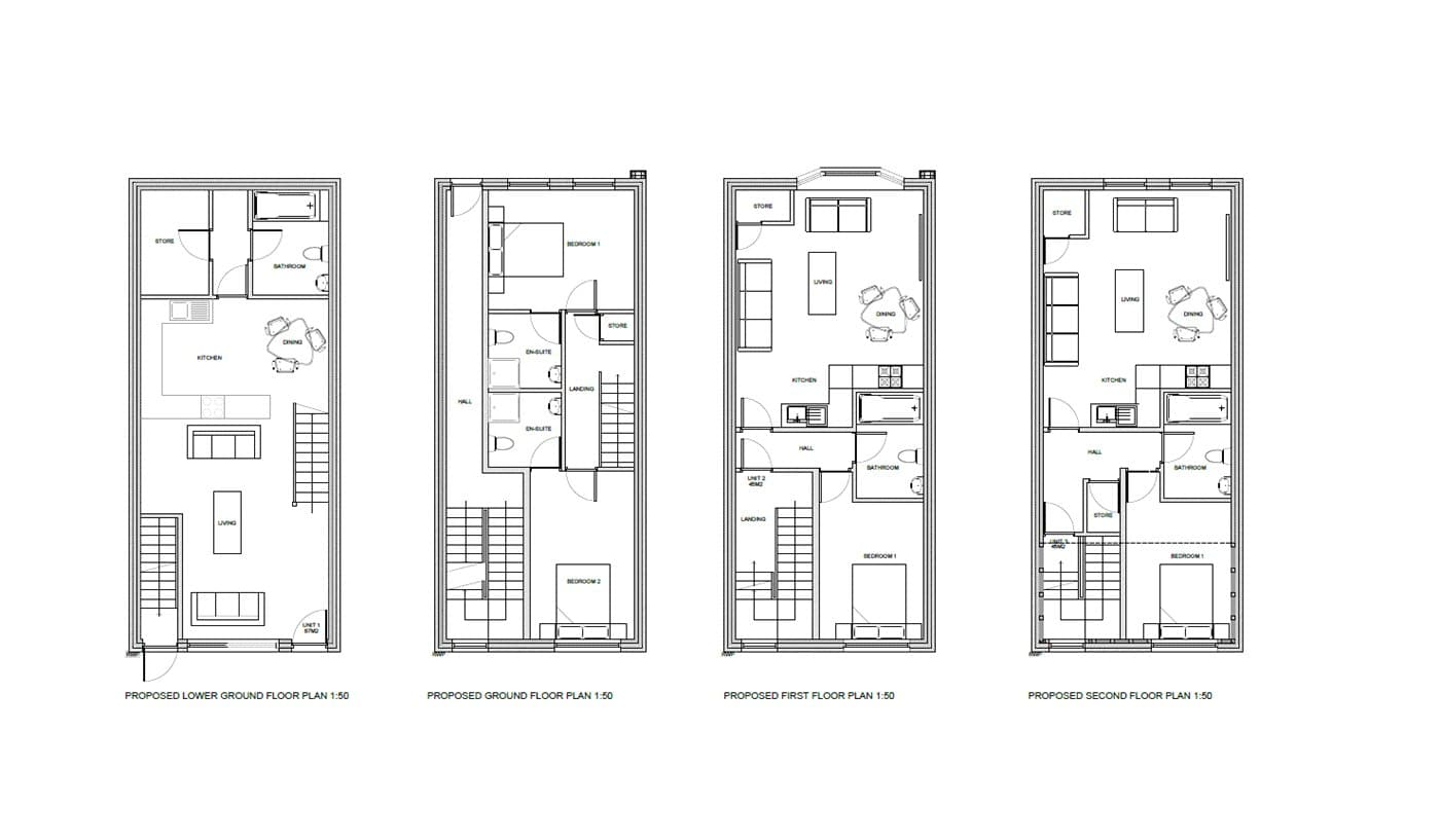
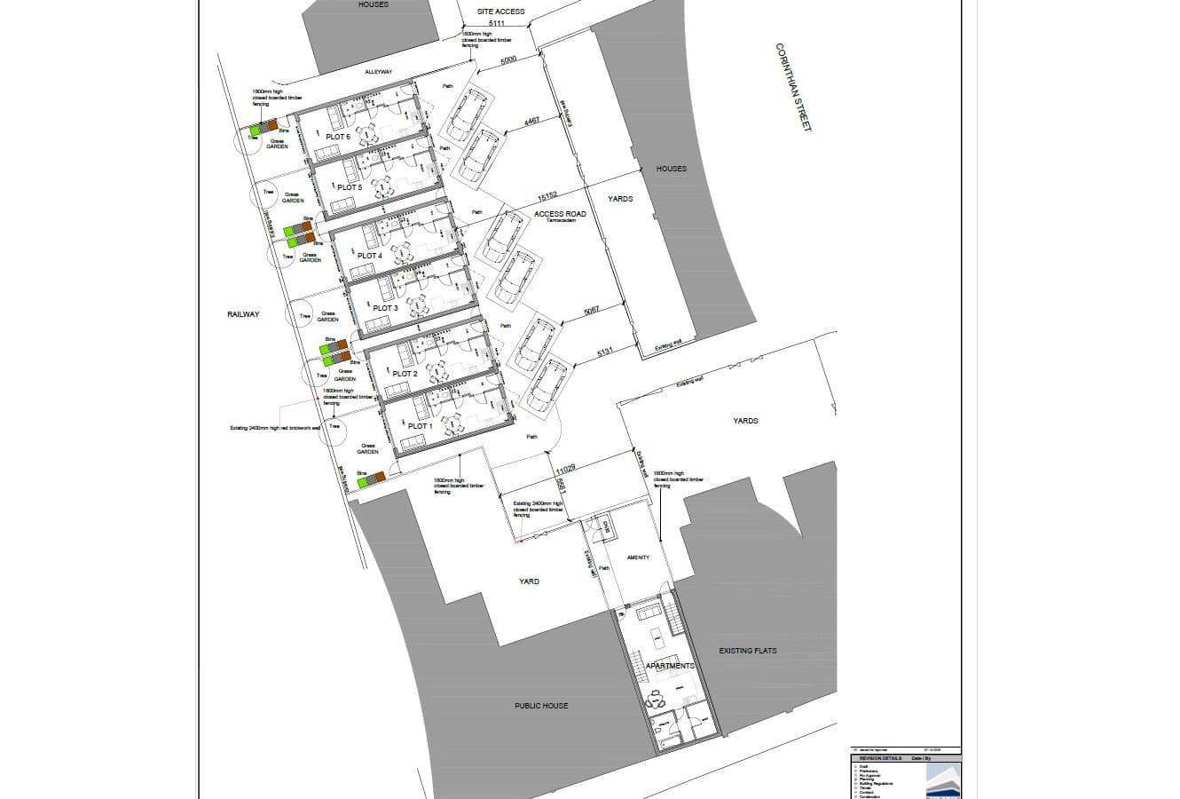
Planning in principle agreed! Vacant land for sale with planning approved for 6 three storey houses accessed via Lees Avenue and an additional block of 3 apartments with road access to Bedford Road.
Features
Planning in principle
6 Houses
1 x 2 Bedroom
2 x 1 Bedroom
Close to amenities
Access via Lees Avenue
PIP/26/00060






