45











































Offers Over
£1,250,000
Overdale Road, Willaston, Neston, Cheshire, CH64 1SY
- Detached
4
3
3
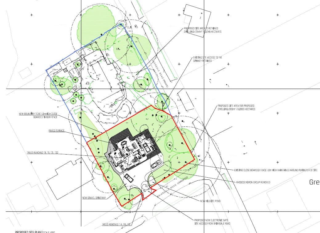
Charming 1920s detached home in leafy Willaston, set on a private road within an exclusive neighbourhood. Occupying just over half an acre with approved planning for an additional dwelling, offering a rare opportunity for both family living and future development.
Features
Freehold
2588 Sq Ft (Approx)
Council Tax Band G
Four bedroom detached house
Occupying a large corner plot
Private road in an exclusive neighbourhood
Stunning sun drenched gardens
Two ensuite bedrooms
Large study
Fabulous entertaining room
Kitchen with utility room
Groound floor WC plus cloaks room






